TA-13: Difference between revisions
From Zenitel Wiki
No edit summary |
No edit summary |
||
| Line 3: | Line 3: | ||
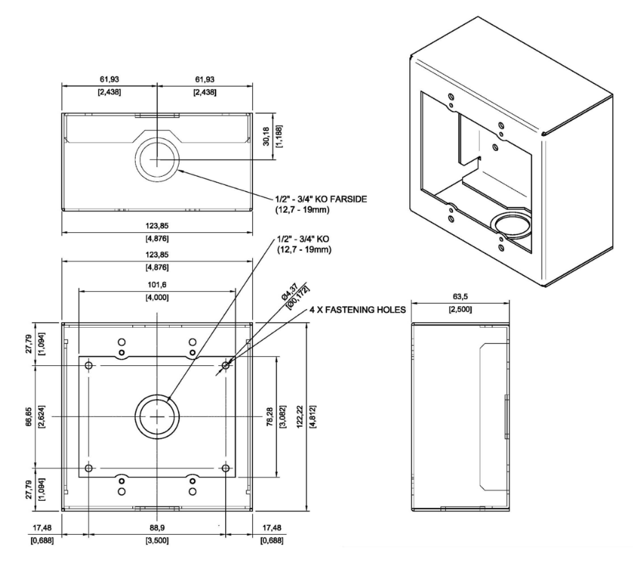
Backbox for: | Backbox for: | ||
*[[TMIS-1]] | *[[TMIS-1]] | ||
*[[TMIV-1+]] | |||
*[[TMIS-2]] | *[[TMIS-2]] | ||
*[[TMIS-4]] | |||
Color: White | Color: White | ||
Revision as of 08:05, 16 March 2022
Backbox for:
Color: White
