Actions

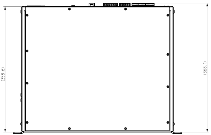
ENA2100-AC2 - Dimensions

From Zenitel Wiki

  • Dimensions (HxWxD): 87 x 482 x 372 mm
  • Weight: 10.7 kg
  • Shipping Weight: 12 kg
Topside view
Front view
Side view
Rear view
MediaWiki spam blocked by CleanTalk.